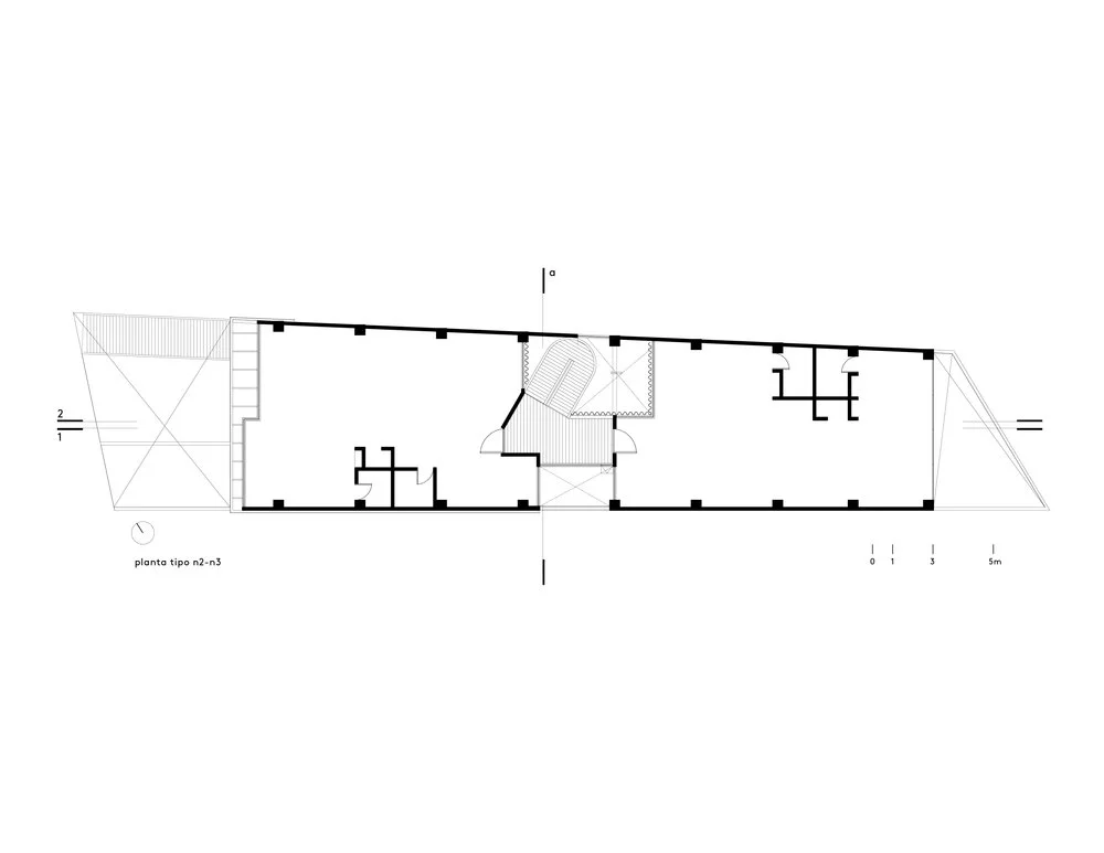
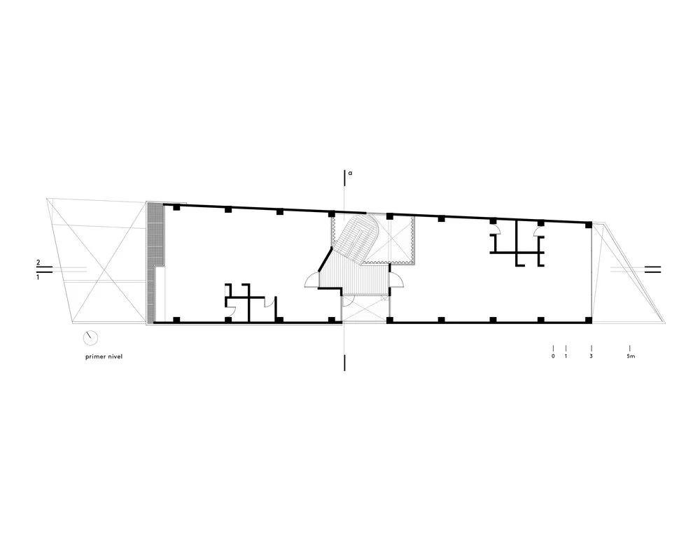
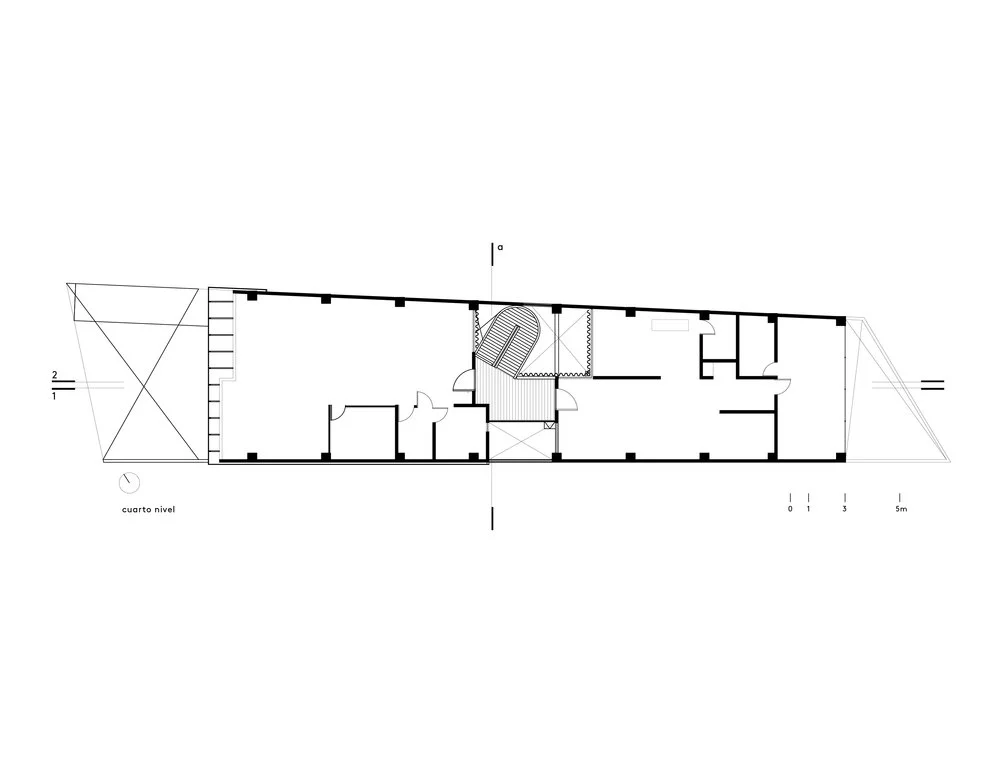
tlalpan
Colaboradores
Erika Andrade
Carlos Ascensión
José Martín González
Isaac Guzmán
Christopher Koehn
Paloma Martínez
—
Colaboración
GoKo
Ubicación
Ciudad de México, México
Área construida
1 560 m²
Año
2012
Fotografía
Aki Itami R.
Concepto
De un edifico existente en malas condiciones sobre avenida de los insurgentes se limpia todo elemento innecesario y se deja solamente lo mas indispensable. Para contrarrestar el ruido, dar privacidad y permitir la entrada de luz necesaria al edificio, se cubre con una serie de velos en fachada e interiores resultando en un ambiente ideal de trabajo.
