hilti
Colaboradores
Carlos Ascensión
Ana Julia Carvajal
Alejandra de la Cerda
Felipe Cervantes
Janet Flores
Martín González
Isaac Guzmán
Christopher Koehn
Martín Leal
Juan Carlos Pérez
Daniela Santos Coy
Omar Saad
—
Colaboración
GoKo
Ubicación
Ciudad de México, México
Área construida
1 560 m²
Año
2015
Fotografía / Video
Jerónimo Villar
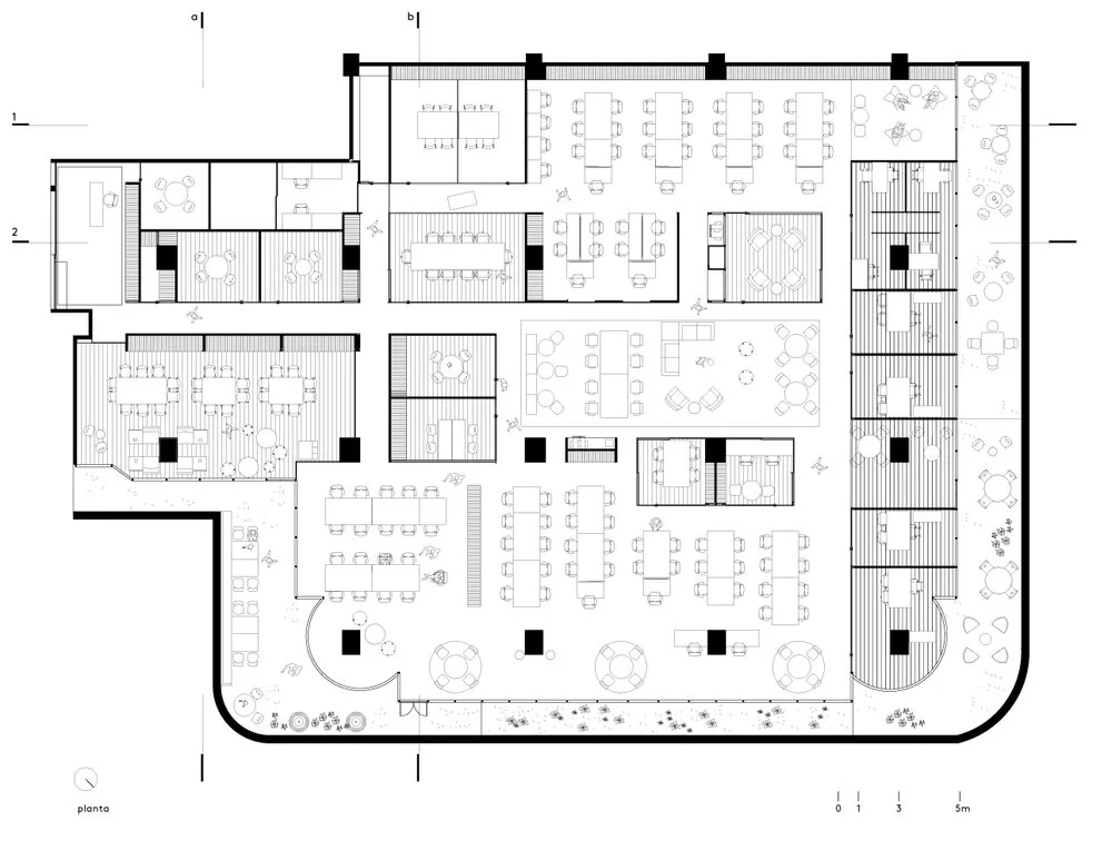
Concepto
Creando diferentes núcleos (cubos) de trabajo con disintos ambientes y diferentes características para posibilitar las distintas actividades a realizar en una oficina corporativa actual, se le da forma al proyecto teniendo como resultado una circulación fluida además de espacios libres para recreación y relajación. El espacio exterior permite, por medio de vegetación, dar privacidad a los trabajadores y crear un ambiente mas natural.
