alto pedregal
Colaboradores
Ana Julia Carvajal
Alejandra de la Cerda
Enrique García
Martín González
Isaac Guzmán
Rodolfo Gutiérrez
Christopher Koehn
Martín Leal
Zuleyma Mata
Andrés Miranda
Francisco Pacheco
Antonio Pérez
Juan Carlos Pérez
Oscar Requenes
Javier Ribé
Mauricio Servín
Sofía Trueba
—
Colaboración
Serrano Monjaraz Arquitectos
Ubicación
Ciudad de México, México
Área construida
70 063 m²
Año
2018
Renders
Flow
Concepto
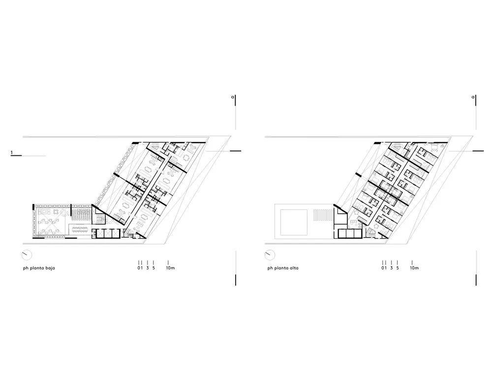
El proyecto se desenvuelve en un predio frente al periférico en dónde se desplanta el edificio sobre el nivel del segundo piso utilizando los niveles inferiores para uso exclusivo de estacionamiento. 330 departamentos se desarrollan en dos torres en forma de escuadra invertidas liberando las vistas de cada departamento generando una serie de patios. En el nivel intermedio entre los departamentos y el estacionamiento se propone una planta libre que en conjunto con los patios conforma un gran parque que alberga las amenidades (alberca, chapoteadero, spa, gimnasio, salones para adultos, adolescentes, niños y eventos).
